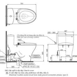
Bồn Cầu TOTO MS885DT2 Một Khối Nắp TC393VS

11,733,000VNĐ

Mã sản phẩm: MS885DT2
Xuất xứ Chính hãng
Tình trạng: Còn hàng